Residential Architecture & Drafting Studies

Welcome to my online portfolio, where I share my architectural drafting work through blueprint renderings, project notes, and reference materials that reflect the creative and technical foundations of my practice.

Single Story House Project Gallery

This gallery features a selection of residential drafting studies, including all drawings, original renders, and plotted sheets scaled to 22" × 34" and adapted to this site. Before breaking ground on any project, clear and well-constructed blueprints are essential to guide the build. Click any drawing to view details and learn more about the final blueprint.

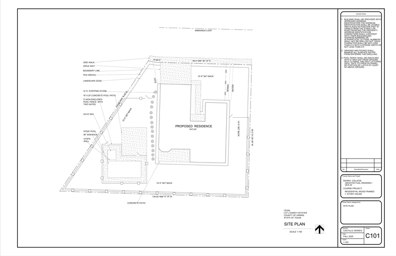
Site plan, fence, pool and spa,setbacks,metes and bounds, proposed location of house.
Site Plan Single story, 1973 sq ft · 2 bed / 2 bath · fenced patio with bay window
Single-story, garage, compact footprint.
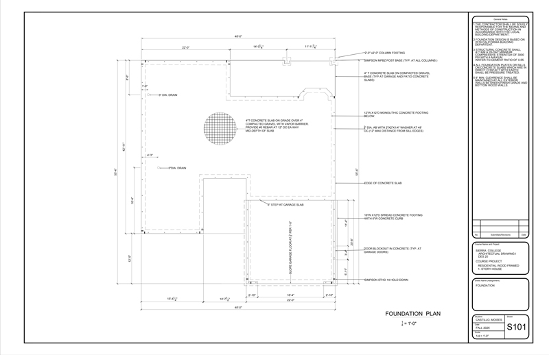
Foundation Plan Concrete slab foundation with footing
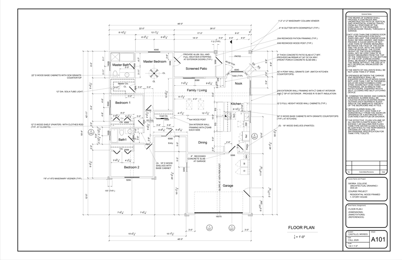
floor plan
Floor Plan 1973 sq ft · 2 bed · 2 bath with full annotations and dimmensions as a guide for complete construction.
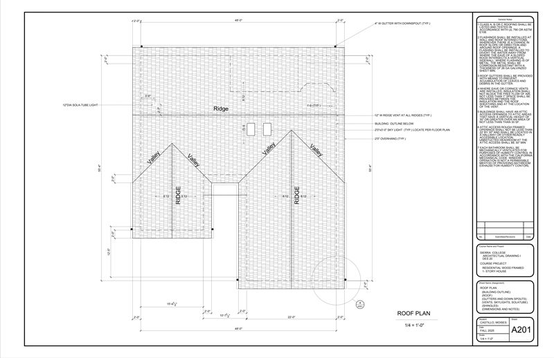
Roof plan, dimension,materials, roof pitch 8:12
Roof Plan Roof pitch 8:12, with two skylights, and solar tube in master bedrom closet.
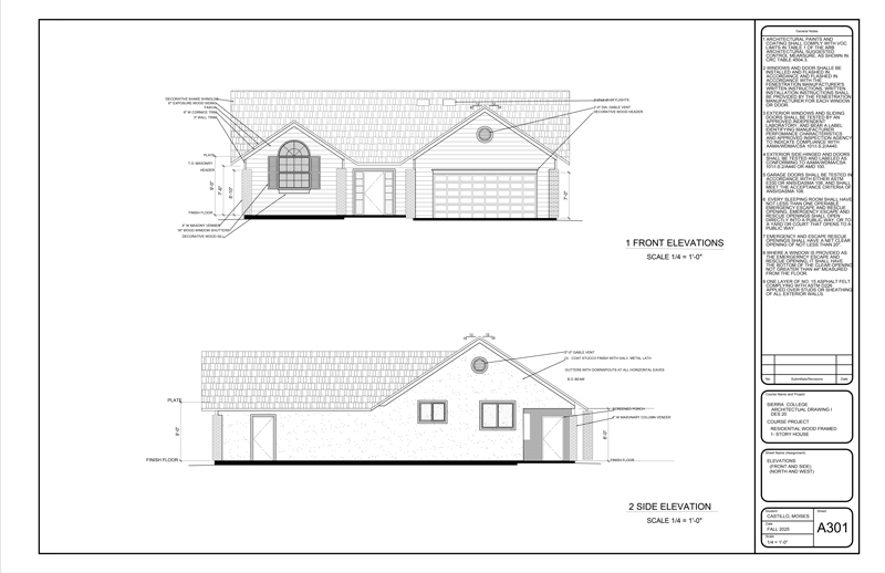
Front and Side Elevation, including the top plate designation,finish floor visual, and slope.
Front and Side Elevation Illustration of elevation, stucco exterior, siding, masonary, windows.
Rear & Side Elevations.
Rear & Side Elevations Siding and stucco exterior and masonry columns, screened patio.
Narrow lot row house floor plan with vertical circulation core.
Section of House House section to illustrate roof frame, frame of structure, dry wall and flatwork.

Statement of Work

This work is part of my drafting course at Sierra College (BI-0010), where our semester-long goal was to complete a full set of architectural drawings and compile them into a professional portfolio. Throughout the course, I learned the fundamentals of AutoCAD and applied them to produce clear, accurate drafting work that follows industry best practices—proper line weights, dimensions, annotations, and layout standards—while adhering to established architectural guidelines and appendices. My long-term goal is to integrate these drafting skills into my broader creative practice, exploring where technical precision and artistic imagination can meet.

About the Draftsman

Moisés Castillo is a multidisciplinary visual artist based in the Sierra Nevada foothills. With formal training in studio art, web design, and graphic communication—and current studies in architectural drafting—he continues to expand and refine his visual vocabulary across mediums.

Bibliography

Drafting & Technical

  • Shumaker, Terrence M., et al. AutoCAD and Its Applications: Comprehensive. Goodheart-Willcox Co., Inc., 2019.
  • AutoCAD drafting coursework
  • Jefferis, Alan, et al. Architectural Drafting and Design. Kindle edition, Cengage Learning, 2012.
  • Instructor

  • Jeff Hagan, M.S. Construction Management University of Washington.
  • Digital Tools & Learning

    • AutoCAD: MAC version,2026

    Get in Touch

    For collaboration, portfolio requests, or project inquiries, please reach out.

    Email the Studio